都市叢林。幸福鳥house【鳥先生】

【就從這裡說起好了】
這是這個部落格的第一篇網誌,就從我們家的一個開始說起好了…..
這個家,位於連續的大樓群中,也因為樓層不高,所以從每個窗戶望出去,都是一棟棟的高樓;但也由於三面採光加上通風良好,一踏進這個門,立刻就愛上了這間房子。至於為什麼叫鳥house…這就是小弟自己綽號有個鳥字罷了!
由於自己是建築系畢業,加上好友在建設公司工作有熟識的設計公司;很快的就決定自己來設計這個家,並交由設計公司施作。其實在初步規劃的時候,就耗費了快一個半月的時間,每天不斷的和好友研究圖面,也常常上門找設計公司討論。運氣真的很好,有這麼好的朋友及遇到細心耐心的設計公司。
鳥house原本的樣子,看了數十個中古屋;也和女王討論了許久,最後就決定這間囉!
↗客廳,未來電視牆的位置
↗主臥,最大的房間(其實也沒多大)
↗次臥,試了幾種床的配置,最適合的方式床頭會在樑下,只好靠天花板來修飾。
↗三臥房,超小一間,前屋主客變的木地板,預計當作客房或書房使用。
也由於空間運用的不確定性,這間只有天花板施作。
↗客廳及餐廳,由於不喜歡有走廊的配置,所以非常喜歡這樣的格局。
↗餐廳及廚房,女王非常喜歡烹飪及製作小點心,所以這裡會設計成她的小天地。
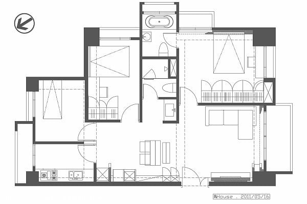
建築系待了五年,建築模型做了不下數百個,但這次的設計圖面,是真的能被做出來的,心中當然有說不出的興奮感。最後的平面圖:
從開工到完工,每一天一下班一定是先到現場,一有問題馬上就連絡設計公司,這二個月來,大概撥了好幾十通了吧!也要再次感謝他們總是不厭其煩的幫我解決了所有的問題。
↗木工、冷氣同時在施工
↗每天一下班,一定馬上來看進度,現在回想起來…真是非常累!
↗過了一個月,油漆終於進場了,電視櫃也完成了!這電視櫃看似簡單,其實內部有超多的線路,總開關及弱電箱都在裡面,還有預留的網路線、IP分享器、HDMI、電話線、第四台…等等,之前光是解釋給水電聽還不夠,還特別另外畫了一線路圖,就怕師傅們搞錯><。另外未來的5.1劇院也都規畫好了(女王說:這又不重要)所以預算暫被擱置了T_T
↗鞋櫃及工作台
↗油漆後,冷氣、窗簾安裝
↗電視安裝,SONY服務真的很讚,也很細心
↗最後清掃
↗東西開始搬入,嚇死人的超多東西><
↗終於,趕上好日子入厝
垂直、水平、加上梧桐木及鄉居色牆的互相搭配,就成了客廳與餐廳的主要的空間元素。雖說層板照明有不少缺點,但還是喜歡間接光源較柔和的質感(就像外閃跳燈的好效果XD),所以還是在空間中拉了一條層板燈。
從交屋到完工,總共三個多月的時間,心中的大石頭總算放了下來;後續搬家和整理(女王東西超超超多),也在2天內就完成,就為了趕在農曆7月前入厝,真的真的是累慘我們了,在這裡也感謝學弟們熱心的幫忙搬家。
【客廳及餐廳】
躺在沙發上,吹著冷氣、看著電視、欣賞著裝潢…這一刻!真的一切辛苦都值得了。(眼淚都快流出來)
↗客廳及餐廳
↗電視櫃
↗客廳(茶几也是木做的,因為女王非常歡拼圖,所以設計成拼圖桌面的形式)
↗預留的HDMI線,無論畫圖、看PPS都超方便
↗茶几及IEKA沙發(會選IEKA是因為這款沙發套是可以換的,看膩了可以換個風格)
↗可更換裡面的拼圖,應付女王永遠有買不完的新拼圖XD
↗電視牆及一旁簡單的書櫃
↗木作噴漆及梧桐木層板
↗也是挑了很久的窗簾(其實不是照片的顏色,照片跟實際差很多@@”)
↗餐廳
↗輕料理工作檯,貴森森但不錯用的蒸烤爐及女王的一堆瓶瓶罐罐
↗餐廳往客廳看去
↗滿滿的東西
↗TOSHIBA冰箱,很推薦
↗客廳,畫還沒掛,當然是因為女王還在拼新買的拼圖XD
另外冷氣回風高度後來也請師傅做了修正。
↗抱枕是窗簾廠商送的,先加減用囉。
↗沙發後面的層板是學IEKA的,非常方便,可以放書本、遙控器…等等
↗冷氣送的子母機,之前買的店子相框
↗原本的樑剛好用來區隔空間
↗客廳陽台,自己買B&Q的地板來鋪
↗電視櫃,真的很喜愛梧桐木的質感
↗小花很滿意這沙發
↗餐桌上的吊燈
↗雖說空間不是很大,但很幸福
【主臥】
↗使用系統櫃(白平衡不太準、偏洋紅了><)
↗系統櫃門把(這張顏色比較接近,是白橡木)
↗床包很不搭,但還很新,所以先用囉!
↗當然,掛拼圖是一定的@@”(掛的有點太高了><)
↗主臥陽台也鋪了木地板
【次臥】
↗露台也都種滿了植物
↗一樣也是使用系統櫃
【客房】
什麼都沒做的一間><,家具都是用原有的,所以就先略過囉!
將來弄好在上來分享吧!
【後記】
↗女王做的的請客大餐
↗謝謝大家啦!

























































3 則留言
裝潢之後變得好有質感喔!
讚讚讚!我喜歡你們家啦~~~好溫馨^___^
版主回覆:(11/04/2011 01:06:19 AM)
謝謝你也喜歡啦^____^【鳥先生】
想請問茶几在哪裡買的?
還是訂做的?
謝謝
我也很愛拼圖
版主回覆:(02/20/2012 07:40:12 AM)
茶几是請木工訂做的阿!
可以用來展示拼圖~呵呵!桌面也比較有變化~
喜歡你的家 很乾淨清爽
木頭的顏色因為是淺的 所以不會有壓迫感
開放式的空間 讓人覺得親切
小小的空間但足夠讓兩人生活
真是讚!!! 🙂 太厲害了!
版主回覆:(06/01/2012 08:42:11 AM)
呵呵!!!淺淺的顏色真的比較舒適~
到現在都還是感覺很清爽喔!不會膩呢!!
小小空間,很溫暖~~~
多謝你的誇獎啦!